高级灰:银行双机构协同办公总部的融合设计

Bank HQ Offices Bucharest By K2 Design Lab

整理:时尚办公网 | 发布时间:2025年10月23日
高级灰:银行双机构协同办公总部的融合设计
设计:K2 Design Lab
地址:罗马尼亚 布加勒斯特
面积:1,136平方米(152个工位)
时间:2025年
摄影:Sebastian Stan
Tags:金融/银行,总部、双机构共享办公、开放协作、可持续改造、人性化、金属色、高级灰、圆形元素、模块化、人体工学、高效耐用、未来适应性

K2 Design Lab为银行打造的布加勒斯特办公室,巧妙融合两家独立机构的各自需求,通过灵活布局构建出有机统一的整体。这一设计不仅促进团队协作、彰显可持续理念,更将人性化关怀贯穿每个细节。

高级灰:银行双机构协同办公总部的融合设计

设计从一个复杂的运营结构出发,旨在为两个需求互补、目标明确的独立实体打造总部办公空间。核心挑战在于如何让办公空间呼应这种双重性,同时保持设计理念的整体协调。

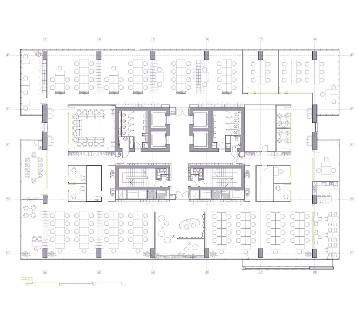
该项目采用开放式布局,根据各部门特定需求及协作模式精准规划功能分区,并配备多重规格的会议室。整体装修面积达1,136平方米,设置152个工位,并为未来团队扩张预留了弹性发展空间。

高级灰:银行双机构协同办公总部的融合设计 高级灰:银行双机构协同办公总部的融合设计 高级灰:银行双机构协同办公总部的融合设计 高级灰:银行双机构协同办公总部的融合设计 高级灰:银行双机构协同办公总部的融合设计

入口区域成为整个楼层的视觉焦点。弧形墙面与流线型前台构筑出灵动氛围,金属饰面、镜面反射与圆形元素的重复运用,暗合着空间的功能属性。背景墙金属板上的环形灯光装置,既为等候区增添韵律感,又赋予空间纵深层次。

高级灰:银行双机构协同办公总部的融合设计 高级灰:银行双机构协同办公总部的融合设计 高级灰:银行双机构协同办公总部的融合设计

该项目的可持续性体现在保留既有隔墙结构,并根据现有租户需求赋予其新功能,仅必要区域辅以玻璃隔断与新砌墙体。最关键改造在于天花板——原有吊顶被完全拆除,沿玻璃隔墙区域与中心交通节点进行了局部重建。既现有的功能性机电管道系统均予以保留,并根据法规要求进行了改造以适应当前的技术规范。

高级灰:银行双机构协同办公总部的融合设计 高级灰:银行双机构协同办公总部的融合设计 高级灰:银行双机构协同办公总部的融合设计 高级灰:银行双机构协同办公总部的融合设计 高级灰:银行双机构协同办公总部的融合设计 高级灰:银行双机构协同办公总部的融合设计 高级灰:银行双机构协同办公总部的融合设计

设计秉持以人为本的理念,为每个部门便捷配置休闲区、直饮水点与咖啡点,并以绿植元素点缀空间。科技应用与实用性能被列为优先考量,通过声学解决方案、符合人体工学的办公家具及高品质装修材料,共同保障空间使用效率与持久耐用性。

本项目设计流程涵盖概念方案与平面布局规划、技术文档统筹、装饰材料与家具灯具甄选,直至施工管理及成品交付。项目着力凸显空间灵活性、模块化组合、高性能基础设施与节能特性,同时确保色彩体系与设计元素和谐相融。

高级灰:银行双机构协同办公总部的融合设计 高级灰:银行双机构协同办公总部的融合设计 高级灰:银行双机构协同办公总部的融合设计 高级灰:银行双机构协同办公总部的融合设计 高级灰:银行双机构协同办公总部的融合设计 高级灰:银行双机构协同办公总部的融合设计 高级灰:银行双机构协同办公总部的融合设计 高级灰:银行双机构协同办公总部的融合设计 高级灰:银行双机构协同办公总部的融合设计

编译:时尚办公网,转载请注明。