Sidara欧洲总部:Perkins&Will的可持续设计革命

Perkins&Will Sidara HQ 150 Holborn London

供稿:Perkins&Will | 发布时间:2025年09月24日
Sidara欧洲总部:Perkins&Will的可持续设计革命
设计:Perkins&Will
地址:英国 伦敦
面积:16,997 平方米
时间:2023年
参与设计团队:Optima、Hunters、Senator、Very Good and Proper、Icons of Denmark、Vitra、Modus furniture、Hay、Allermuir、Hitch Mylius、Desso Carpets、Interface、Clerkenwell Rug Studio、Kvadrat、Sidara Group、McLaren Construction、Introba
摄影:Nick Guttridge
Tags:建筑设计,共享总部、协同创新、模块化、共生联结、垂直互联、智慧建筑、可持续认证、资源循环、能源自治、生物多样性

全球建筑与设计公司Perkins&Will为Sidara(Sidara前身为Dar集团)设计了位于伦敦的欧洲总部。Sidara是由多家专业设计、工程与咨询公司组成的联合机构。这座位于英国伦敦中心150 Holborn的新建建筑,其创新设计与施工均由Sidara成员企业自行完成。

Sidara欧洲总部:Perkins&Will的可持续设计革命

这座协作型共享企业总部旨在鼓励多个独立却相关的品牌之间开展创意协作。150 Holborn大楼将Sidara协作组织旗下的伦敦成员企业——Dar、Perkins&Will、Portland Design、Currie & Brown、Introba、Maffeis Engineering和Penspen——汇聚于同一屋檐下。作为一座“生活实验室”,该建筑运用智能建筑技术实现自我优化,并提供实时数据为未来项目提供参考。

Sidara欧洲总部:Perkins&Will的可持续设计革命 Sidara欧洲总部:Perkins&Will的可持续设计革命 Sidara欧洲总部:Perkins&Will的可持续设计革命

01/ 协作型共享企业总部

这座一流的办公空间可容纳逾千名员工,他们共同致力于通过设计与工程推动生态健康与福祉。该建筑不仅促进了Sidara成员企业之间的协作与思想交流,同时确保每家企业都能保留其独特的身份属性。“共生理念”与“社交联结”是本案设计的核心要素。

150 Holborn项目的设计既具有现代感又呼应其历史背景,既体现环保责任,又充满启发性。这里激发好奇心,点燃想象力,并营造强烈的社群归属感。这处空间不仅赋予人们自豪感与认同感,更汇聚众多创意英才,共同应对全球最复杂的设计挑战。

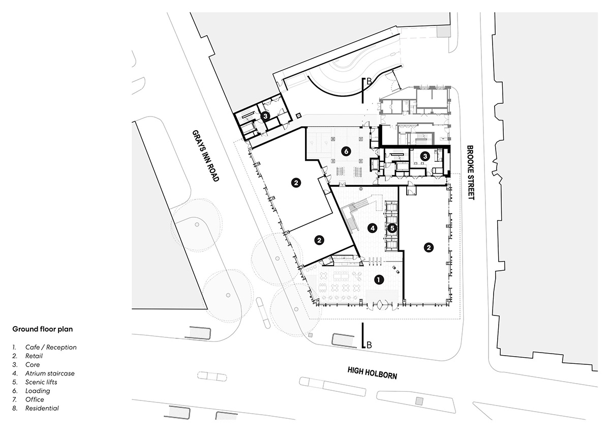
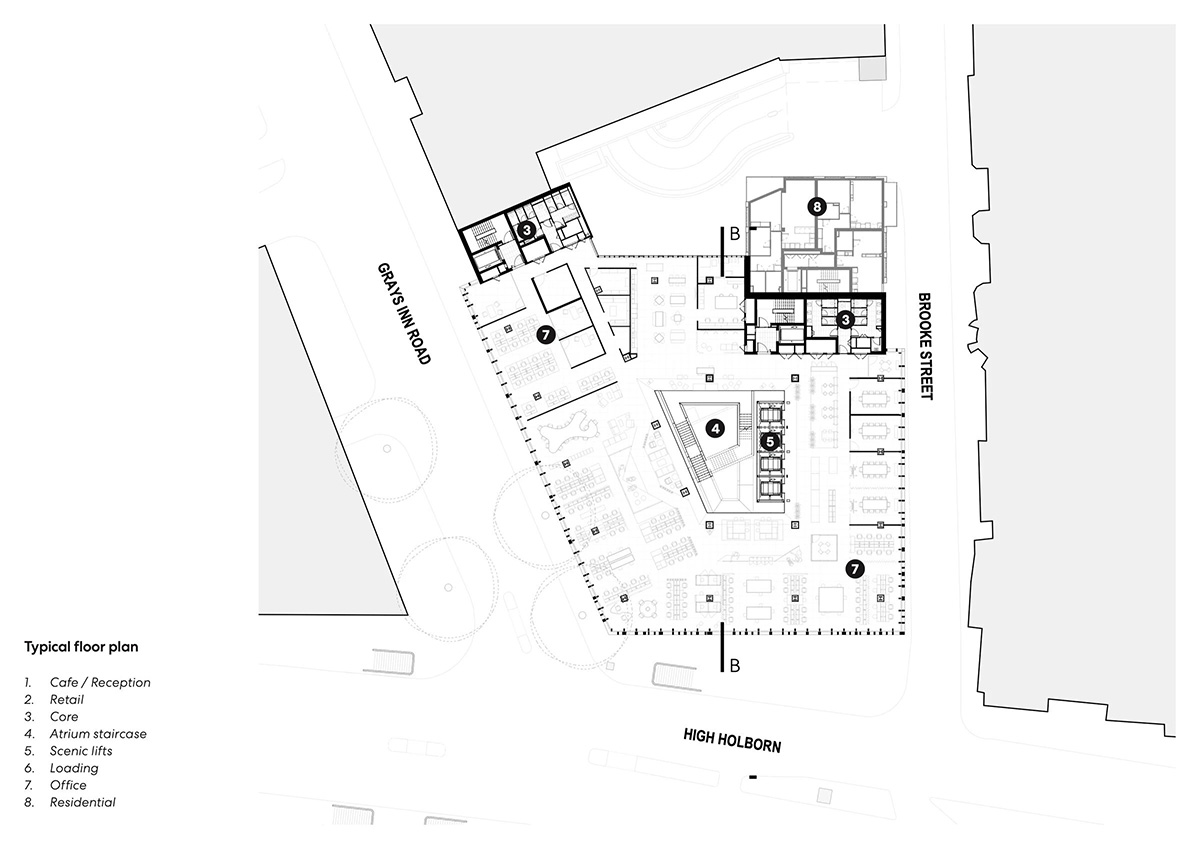
为了促进不同企业间的互动与偶遇,建筑中心位置的中庭通过一座螺旋线型楼梯与四部观景玻璃电梯连接所有楼层,这一创新设计通过偏移建筑核心筒得以实现。开放明亮的中庭形成跨层视觉连接,清晰的视线通廊营造出高度协作的环境。

Sidara欧洲总部:Perkins&Will的可持续设计革命 Sidara欧洲总部:Perkins&Will的可持续设计革命 Sidara欧洲总部:Perkins&Will的可持续设计革命 Sidara欧洲总部:Perkins&Will的可持续设计革命 Sidara欧洲总部:Perkins&Will的可持续设计革命 Sidara欧洲总部:Perkins&Will的可持续设计革命 Sidara欧洲总部:Perkins&Will的可持续设计革命 Sidara欧洲总部:Perkins&Will的可持续设计革命 Sidara欧洲总部:Perkins&Will的可持续设计革命 Sidara欧洲总部:Perkins&Will的可持续设计革命

协作空间遍布整座建筑,空间内融合了公共展区、协作办公区、共享展亭与咖啡厅,以及可俯瞰伦敦天际线的屋顶花园。

Sidara欧洲总部:Perkins&Will的可持续设计革命 Sidara欧洲总部:Perkins&Will的可持续设计革命 Sidara欧洲总部:Perkins&Will的可持续设计革命 Sidara欧洲总部:Perkins&Will的可持续设计革命 Sidara欧洲总部:Perkins&Will的可持续设计革命 Sidara欧洲总部:Perkins&Will的可持续设计革命 Sidara欧洲总部:Perkins&Will的可持续设计革命

02/ 立面美学与城市呼应

150 Holborn立面的设计为伦敦中心区注入了新的韵律与活力。Perkins&Will根据周边环境精心规划了立面的比例与尺度。“例如东西两侧零售店铺的层高,完全遵循相邻建筑确立的尺度规范,”设计团队表示。与伦敦众多区域一样,霍尔本地区融合了多元建筑风格。150 Holborn的毗邻建筑是宏伟的保诚保险大厦(Prudential Assurance Building)——一座采用维多利亚哥特式风格、由红色陶土砌筑的历史建筑。Perkins&Will在设计新总部时充分考虑了这处相邻的法定保护建筑:“我们借鉴保诚大厦的比例体系,在150 Holborn的上下楼层设置了雕塑般的退台式结构。”设计团队解释道。

Sidara欧洲总部:Perkins&Will的可持续设计革命 Sidara欧洲总部:Perkins&Will的可持续设计革命 Sidara欧洲总部:Perkins&Will的可持续设计革命

03/ 可持续实践

新建建筑取代了1980年代的旧办公楼。Perkins&Will实施了拆前审计,确定了哪些材料可现场再利用(如混凝土和碎砖),哪些可异地回收(如金属)。“总体而言,我们的拆除报告显示97%的潜在废弃物实现了再利用或回收,”事务所表示。

可持续性是Perkins&Will的核心价值观:“该项目有望获得BREEAM杰出级与LEED铂金级认证,是伦敦极少数符合此类严格可持续标准的新建项目之一,”事务所强调。

建筑“智能表皮”的应用大幅降低了能耗——通过玻璃增强混凝土鳍片构成的分隔系统实现。这些鳍片同时有效减少了太阳辐射量。

Sidara欧洲总部:Perkins&Will的可持续设计革命 Sidara欧洲总部:Perkins&Will的可持续设计革命 Sidara欧洲总部:Perkins&Will的可持续设计革命 Sidara欧洲总部:Perkins&Will的可持续设计革命 Sidara欧洲总部:Perkins&Will的可持续设计革命

04/ 智慧赋能建筑可持续

该建筑设计中尤为引人注目的是其“生活实验室”功能——通过运用智能建筑技术,实现自我优化并提供实时数据,为未来项目的设计与开发提供参考。这项智能技术可监测员工福祉、运营效率与资产性能。150 Holborn的数字孪生系统提供能源计量数据及人员使用建筑各空间的情况。该体系致力于优化环境性能与使用者舒适度——Perkins&Will强调“这是英国首次大规模应用此类智能建筑技术”。

其他可持续措施包括:通过屋顶光伏电池产生可再生能源,蓝色屋顶系统和雨水调蓄池可滞留雨水,降低公共系统溢流风险。从建筑洗手盆和淋浴设施收集的灰水经过处理回收,用于灌溉系统。栽种的植被——包括低矮常绿乔木、落叶原生灌木及地被植物——有助于减轻城市热岛效应,并促进150 Holborn所在的伦敦中心繁华建成区的生物多样性。

其他可持续措施包括:通过屋顶光伏电池产生可再生能源,蓝色屋顶系统和雨水调蓄池可滞留雨水,降低公共系统溢流风险。从建筑洗手盆和淋浴设施收集的灰水经过处理回收,用于灌溉系统。栽种的植被——包括低矮常绿乔木、落叶原生灌木及地被植物——有助于减轻城市热岛效应,并促进150 Holborn所在的伦敦中心繁华城区的生物多样性。

Sidara欧洲总部:Perkins&Will的可持续设计革命 Sidara欧洲总部:Perkins&Will的可持续设计革命 Sidara欧洲总部:Perkins&Will的可持续设计革命 Sidara欧洲总部:Perkins&Will的可持续设计革命 Sidara欧洲总部:Perkins&Will的可持续设计革命

05/ 模块化设计与再生美学

在室内空间,模块化家具与建筑构件均采用可拆卸设计,从而支撑长效可持续的韧性设计。Perkins&Will采用定制化数字打印的薄纱窗帘去界定灵活工作区,同时保持自然光的通透性。所有办公椅及70%的家具经翻新后重新投入使用。

Sidara欧洲总部:Perkins&Will的可持续设计革命 Sidara欧洲总部:Perkins&Will的可持续设计革命 Sidara欧洲总部:Perkins&Will的可持续设计革命 Sidara欧洲总部:Perkins&Will的可持续设计革命 Sidara欧洲总部:Perkins&Will的可持续设计革命 Sidara欧洲总部:Perkins&Will的可持续设计革命 Sidara欧洲总部:Perkins&Will的可持续设计革命 Sidara欧洲总部:Perkins&Will的可持续设计革命 Sidara欧洲总部:Perkins&Will的可持续设计革命 Sidara欧洲总部:Perkins&Will的可持续设计革命 Sidara欧洲总部:Perkins&Will的可持续设计革命 Sidara欧洲总部:Perkins&Will的可持续设计革命 Sidara欧洲总部:Perkins&Will的可持续设计革命 Sidara欧洲总部:Perkins&Will的可持续设计革命 Sidara欧洲总部:Perkins&Will的可持续设计革命

供稿:Perkins&Will,来源:时尚办公网,转载请注明。